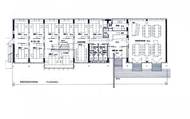
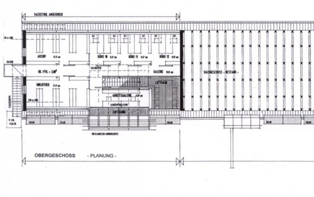
Umweltzentrum, Stücken I 2000
Planung für den Umbau eines Werk- und Garagengebäudes einer LPG zu einem Büro- und Vereinsgebäudes für den Landschafts-Förderverein Nutze-Nieplitz-Niederung in Stücken bei Potsdam.
Neben den Büros und einer Bibliothek sollte ein Mehrzweckraum vorgesehen werden, der auch als separater Gemeinschaftsraum für die Dorfgesellschaft genutzt werden kann.



