Weisser Weg 123 I Lemgo I 2003
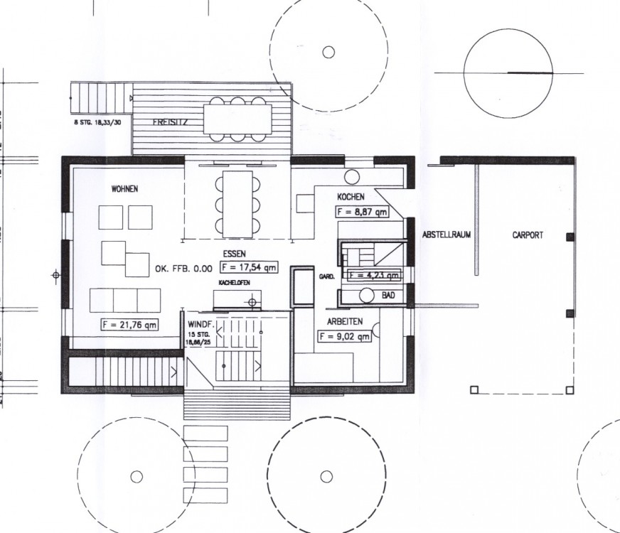
Ausbau einer Scheune im Aussenbereich der Stadt Lemgo zu einer Wohnung für eine vierköpfige Familie.
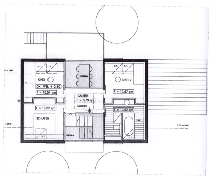
Nach Auflage des Planungsamtes der Stadt Lemgo war der Scheunencharakter zu erhalten, Fensterflächen auf das notwendige Mass zu reduzieren. In den Scheunenraum wurde eine Geschossdecke als kombinierte Stahl-Holz-Konstruktion eingeschoben.
In Absprache mit der Unteren Denkmalbehörde sind zwei zusätzliche Fenster in die Fassade eingebaut worden, weitere Belichtung erfolgt über einen verglasten Dachreiter im Firstbereich. Das äussere Erscheinungsbild des Gebäudes blieb erhalten, da nur maginal in den Bestand eingegriffen wurde.










